- By adminLiving
- 0 Comments
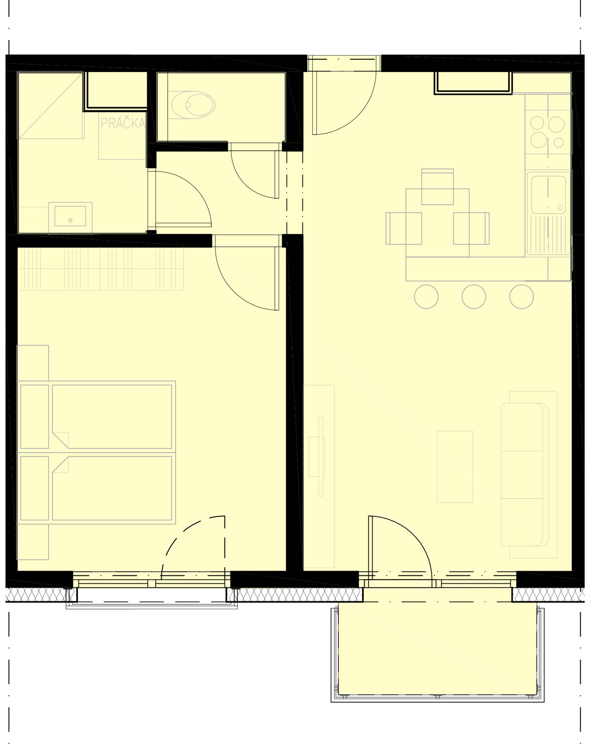
- Miestnosti
- Vybavenie
42,21 m2
Zádverie/Kuchyňa/Jedáleň:: 6,15 m2
Chodba: 1,75 m2
WC: 1,49 m2
Kúpeľňa: 3,00 m2
Spálňa: 13,91 m2
Obývacia izba: 13,91 m2
Balkón 2,93 m2
Zádverie/Kuchyňa/Jedáleň::
Podlaha - Keramická Dlažba
Sokel - Keramický sokel
Steny/Stropy - Váp.Cementová omietka
Kúpeľňa/WC:
Podlaha - Keramická Dlažba,
Sokel - Keramický Obklad,
Steny/Stropy - Váp.Cementová omietka
Obývacia izba:
Podlaha - Dubové Parkety/Ker.dlažba
Sokel - Drevené Lišty/Ker.obklad
Steny/Stropy - Váp.Cementová omietka, ker.obklad za kuch.linku
Spálňa:
Podlaha - Dubové Parkety/Ker.dlažba
Sokel - Drevené Lišty/Ker.obklad
Steny/Stropy - Váp.Cementová omietka, ker.obklad za kuch.linku
Balkón:
Podlaha - Mrazuvzdorná protišmyková keramická dlažba
Typické Podlažie
